27304 Gulf Road Unit A, Orange Beach, AL

$5,895,000

Previous Next

4

Beds

6

Baths

4,154

Square feet

1.63

Acres

About 27304 Gulf Road Unit A

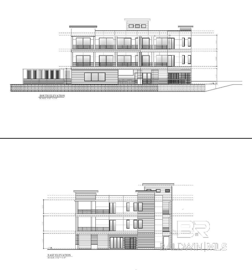
Every Day begins with a view at South Beach II. Discover the unparalleled coastal elegance in this Brand-New Pre Construction in one of the most unique locations that Orange Beach has to offer!! You absolutely have to see this property to believe it!! These two Modern and Contemporary condominiums will offer two separate residential properties with front row seats with views of the Orange Beach Pass and the Gulf of Mexico/America and within steps of the beautiful beaches. Each Condominium offers 4 Bedrooms, and 5.5 Baths, large outdoor living area with Private pool for each residence, Outdoor Kitchen, Outdoor Shower, Private BBQ area, seven (7) parking spaces each, entertaining area, covered terrace, storage and so much more. Entering through your private elevator you will find a stunning hand designed staircase leading you to this exquisite residence that features all high-end finishes w/subzero and Thermador Stainless appliances, beautiful cabinetry, wet bar, linear gas fireplaces, 14' kitchen island with a waterfall feature, large pantry, porcelain tile flooring and marble, quartz and gorgeous finishes throughout. The views are unlimited from the interior with high impact doors and plenty of beautiful windows capturing the sunrises, beach goers and boating activity. Relax on your 14' deep balconies overlooking your private pool and the mesmerizing views of the Gulf and the Pass that is waiting for you and your family. This unique and Modern Residence will make a Fabulous Investment Opportunity for Short Term Rentals.Each Condo features 4154 sq. ft. of Heated and Cooled space, 1944 sq ft. of covered porches, patio and entertaining area, 1134 sq ft. Terrace, Double Garage has 662 sq. ft.Rental Projection, Floor plans, and additional photos under Documents. Buyer and or Buyers Agent to perform all due diligence.Preconstruction Contracts available for reservation.*Need Not be Built Buyer to verify all information during due diligence.

Features of 27304 Gulf Road Unit A

MLS® # 386392
Price $5,895,000
Bedrooms 4
Bathrooms 6.00
Full Baths 5
Half Baths 1
Square Footage 4,154
Acres 1.63
Year Built 2025
Type Residential
Sub-Type Pre-Construction
Status Active

Community Information

Address 27304 Gulf Road Unit A
Area Orange Beach 1
Subdivision South Beach II
City Orange Beach
County Baldwin
State AL
Zip Code 36561

Amenities

Amenities Covered Entry, Internet, Landscaping, Wheelchair Accessible, Water Access-Deeded
Parking Spaces 7
Parking Double Garage, Three or More Vehicles
View Direct Gulf Front
Is Waterfront Yes
Waterfront Beach Accs (<=1/4 Mi), Beach Side - Building, Deeded Access, Gulf Accs (<=1/4 Mi), Gulf Front - Building
Has Pool Yes
Pool In Ground

Interior

Interior Tile
Interior Features Ceiling Fan(s), Elevator, High Ceilings, Internet, Split Bedroom Plan, Storage, Wet Bar
Appliances Dishwasher, Disposal, Dryer, Ice Maker, Microwave, Electric Range, Refrigerator w/Ice Maker, Washer, Wine Cooler
Heating Electric, Central
Fireplace Yes
# of Fireplaces 1
Fireplaces Living Room
# of Stories 3
Stories Two
Has Basement No

Exterior

Exterior Hardboard, P-I-P Reinforced Concrete, Fortified-Gold
Exterior Features Outdoor Kitchen, Outdoor Shower, Storage, Termite Contract, Gas Grill
Lot Description 1-3 acres, Level, Waterfront
Roof Built-Up, Metal
Construction New Construction, Pre-Construction

School Information

Elementary Orange Beach Elementary
Middle Orange Beach Middle
High Orange Beach High

Additional Information

Foreclosure No
Short Sale No

Listing Details

OfficeVicki Lynn Real Estate

Listing Map

Request a Showing

Provide a valid email address.
When would you like to view this property?