About 27304 Gulf Road Unit B
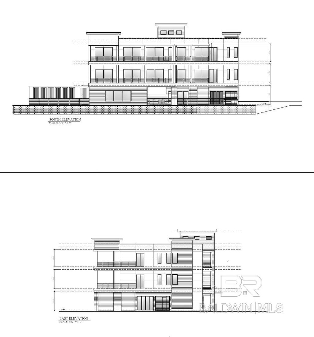
Every Day begins with a view at South Beach II. Discover the unparalleled coastal elegance in this Brand-New Pre Construction in one of the most unique locations that Orange Beach has to offer!! You absolutely have to see this property to believe it!! These two Modern and Contemporary condominiums will offer two separate residential properties with front row seats with views of the Orange Beach Pass and the Gulf of Mexico/America and within steps of the beautiful beaches. Each Condominium offers 4 Bedrooms, and 5.5 Baths, large outdoor living area with Private pool for each residence, Outdoor Kitchen, Outdoor Shower, Private BBQ area, seven (7) parking spaces each, entertaining area, covered terrace, storage and so much more. Entering through your private elevator you will find a stunning hand designed staircase leading you to this exquisite residence that features all high-end finishes w/subzero and Thermador Stainless appliances, beautiful cabinetry, wet bar, linear gas fireplaces, 14' kitchen island with a waterfall feature, large pantry, porcelain tile flooring and marble, quartz and gorgeous finishes throughout. The views are unlimited from the interior with high impact doors and plenty of beautiful windows capturing the sunrises, beach goers and boating activity. Relax on your 14' deep balconies overlooking your private pool and the mesmerizing views of the Gulf and the Pass that is waiting for you and your family. This unique and Modern Residence will make a Fabulous Investment Opportunity for Short Term Rentals. Each Condo features 4154 sq. ft. of Heated and Cooled space, 1944 sq ft. of covered porches, patio and entertaining area, 1134 sq ft. Terrace, Double Garage has 662 sq. ft. Rental Projection, Floor plans, and additional photos under Documents. Buyer and or Buyers Agent to perform all due diligence. Preconstruction Contracts available for reservation.*Need Not be Built Buyer to verify all information during due diligence.
Features of 27304 Gulf Road Unit B
| MLS® # | 386394 |
|---|---|
| Price | $5,895,000 |
| Bedrooms | 4 |
| Bathrooms | 6.00 |
| Full Baths | 5 |
| Half Baths | 1 |
| Square Footage | 4,154 |
| Acres | 1.06 |
| Year Built | 2025 |
| Type | Residential |
| Sub-Type | Condominium |
| Status | Active |
Community Information
| Address | 27304 Gulf Road Unit B |
|---|---|
| Area | Orange Beach 1 |
| Subdivision | South Beach II |
| City | Orange Beach |
| County | Baldwin |
| State | AL |
| Zip Code | 36561 |
Amenities
| Amenities | Internet, Landscaping, Wheelchair Accessible, Water Access-Deeded |
|---|---|
| Parking Spaces | 7 |
| Parking | Double Garage, Three or More Vehicles, Automatic Garage Door |
| View | Direct Bay Front, Direct Gulf Front |
| Is Waterfront | Yes |
| Waterfront | Deeded Access, Gulf Front - Building |
| Has Pool | Yes |
| Pool | In Ground |
Interior
| Interior | Tile |
|---|---|
| Interior Features | Ceiling Fan(s), Elevator, High Ceilings, Internet, Split Bedroom Plan, Storage, Wet Bar |
| Appliances | Dishwasher, Disposal, Dryer, Ice Maker, Microwave, Gas Range, Washer, Wine Cooler |
| Heating | Central |
| Cooling | Central Electric (Cool) |
| Fireplace | Yes |
| # of Fireplaces | 1 |
| Fireplaces | Gas Log, Living Room |
| # of Stories | 1 |
| Stories | One |
| Has Basement | No |
Exterior
| Exterior | Concrete Board, P-I-P Reinforced Concrete, Fortified-Gold |
|---|---|
| Exterior Features | Outdoor Kitchen, Outdoor Shower, Storage, Termite Contract, Gas Grill |
| Lot Description | 1-3 acres, Corner Lot, Level, Waterfront |
| Roof | Built-Up, Metal |
| Construction | New Construction |
School Information
| Elementary | Orange Beach Elementary |
|---|---|
| Middle | Orange Beach Middle |
| High | Orange Beach High |
Additional Information
| Foreclosure | No |
|---|---|
| Short Sale | No |
Listing Details
| Office | Vicki Lynn Real Estate |
|---|
